
Master Planning - Mixed Use - Mountain Valley Village

Master Planning - Resort - Black Desert Resort

Site Planning - Apartments - Palisades Park

Site Planning - Resort - Black Desert

Site Planning - Resort - Black Desert

Site Planning - Industrial Park - Westgate

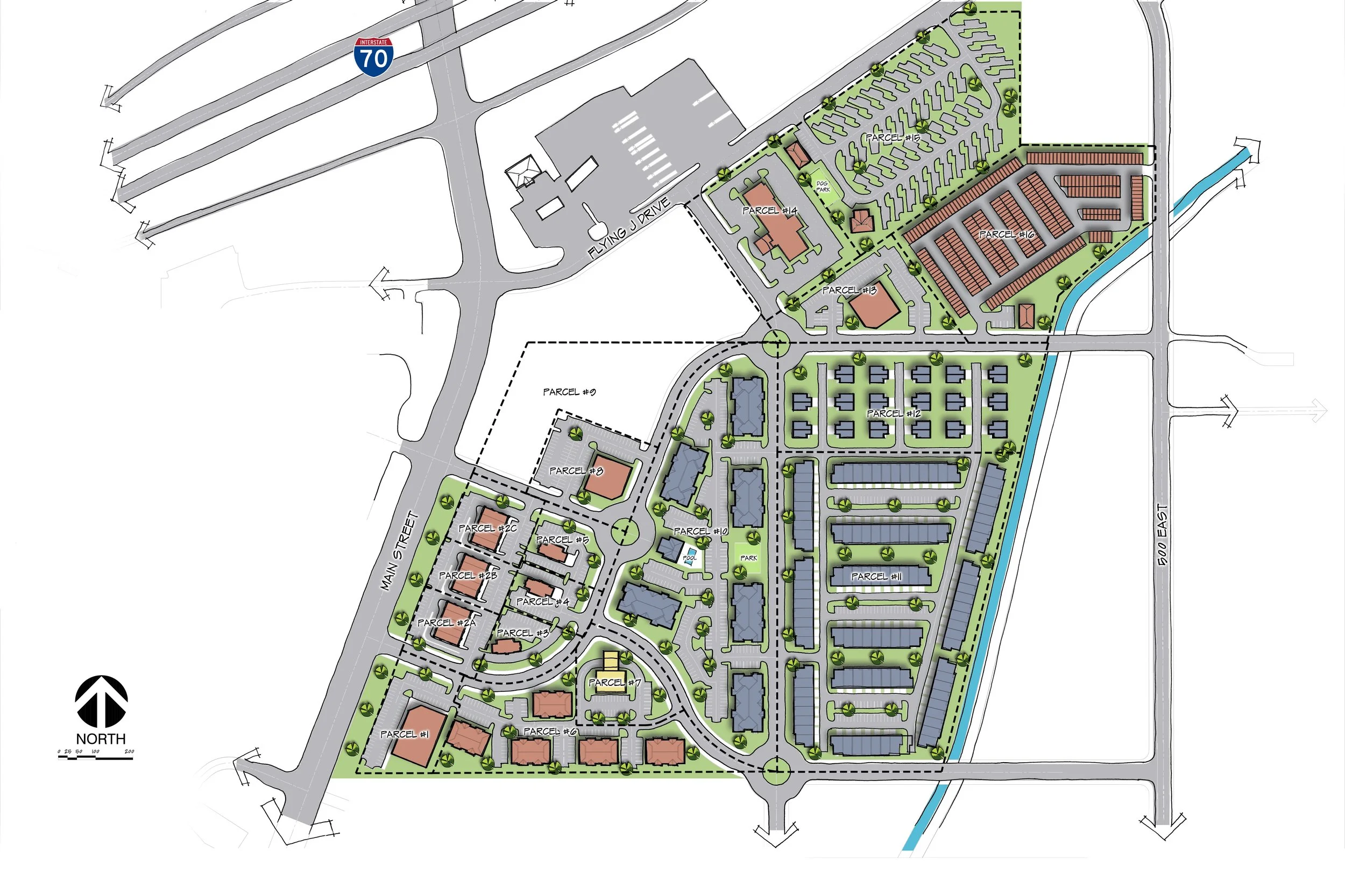
Master Planning - Mixed Use - South Bridge

Master Planning - Golf Resort - Cutalong